VIEW

VIEW: A minimalist home centering art and mountain views

Project Size: 5,776 sf
Location: Boulder, CO

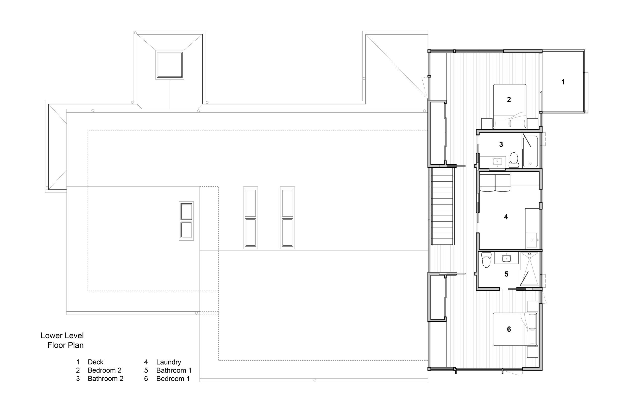
When challenges arise, a good architect knows when and how to pivot to accomplish the client’s goals in a new way. The View House was originally planned as an extensive renovation. As demolition revealed major structural and code issues with the original home, the clients agreed that starting fresh with a new build was the best approach. Permits for a new build would extend the timeline dramatically, so DAJ designed a completely new floorplan within the exact footprint of the original foundation. 

The homeowners wanted a clean, modern home that was as open as possible to capture beautiful mountain views. At the same time, wall space was needed to display meaningful pieces from their extensive art collection, including ceramics and framed art. This project was a true partnership between architect and client. The couple had a clear vision for the interior of the home and made the call on most material choices with DAJ’s guidance. 

Landscape design was integral to the success of the home. Multiple outdoor living areas take advantage of the lot’s incredible mountain views and create a flow between indoor and outdoor spaces. Avid gardeners, the homeowners worked closely with our landscape design team to build in spaces they could tend and evolve over time. 

A rear-facing wall of windows offers a sweeping 180-degree view of Colorado’s Front Range. Each room frames a unique perspective of the outdoors, capturing expansive vistas and intimate scenes. The home is both a gallery and a retreat, exemplifying the potential of design to meet varying and sometimes competing needs. 

Jess Blackwell Photography

Photography

Next
Next

CHERRY